Gimli fasteignasala logo
Skráð 9. sept. 2025
Söluyfirlit

Eddufell 6

Nýbygging • FjölbýlishúsHöfuðborgarsvæðið/Reykjavík/Breiðholt-111
48.9 m2
1 Herb.
1 Baðherb.
Verð
44.900.000 kr.
Fermetraverð
918.200 kr./m2
Fasteignamat
6.320.000 kr.
Brunabótamat
16.900.000 kr.
Mynd af Lilja Hrafnberg
Lilja Hrafnberg
Viðskiptafræðingur/Löggiltur fasteignasali
Byggt 1981
Lyfta
Garður
Sameiginlegur
Fasteignanúmer
2052221
Húsgerð
Fjölbýlishús
Byggingarefni
Steypt
Númer hæðar
2
Hæðir í húsi
6
Hæðir í íbúð
1
Númer íbúðar
3
Vatnslagnir
Nýtt
Raflagnir
Nýtt
Frárennslislagnir
Nýtt
Gluggar / Gler
Nýtt
Þak
Nýtt
Lóðarréttindi
Leigulóð
Svalir
Upphitun
Hitaveita
Inngangur
Sameiginlegur
Matsstig
9 - Í endurbyggingu
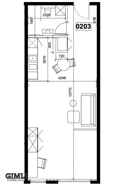
Gimli fasteignasala og Lilja Hrafnberg kynna: Falleg og björt stúdíó íbúð á 2.hæð í vönduðu nýju lyftuhúsi. EIGNIN ER SKRÁÐ SEM ATVINNUHÚSNÆÐI (engin vsk kvöð) en uppfyllir byggingarreglugerð um íbúðarhúsnæði. Eignin sem er í heildina skráð 48,9 fm og skiptist í opið rými með eldhúsi, stofu/herbergi með útgengi á svalir og baðherbergi með þvottaaðstöðu. Vandaðar innréttingar, sérsmíðaðar frá viðurkenndum framleiðanda. Hvítar innihurðir frá Birgisson með svörtum húnum. Fallegt harðparket á alrými, baðherbergi flísalagt. Nánari upplýsingar veitir Lilja Hrafnberg  í síma 8206511, eða lilja@gimli.is

Smellið hér til þess að sjá myndband af eigninni


Forstofa: með fataskáp, harðparket á gólfi.
Alrými: Íbúðin er mjög opin og björt, eldhús, stofa/herbergi með útgengi á skjólgóðar svalir. Sérsmíðuð eldhúsinnrétting frá viðurkenndum framleiðanda, UAB Koalos Medis (Litháen). Skápar í eldhúsi ná upp í loft og eru í viðarlit. Mjúklokur á skúffum og skápahurðum. Spanhelluborð, blástursofn, uppþvottavél og innbyggður ísskápur. Harðparket á gólfi.
Baðherbergi: Flísalögð "walk in" sturta með glerþili. Vegghengt salerni, sérsmíðuð innrétting með handlaug og speglaskáp. Tengingar fyrir þvottavél og þurrkara. Ljósar 60x60 flísar á gólfi og sturtu. Handklæðaofn.
Sameign: Hjóla- og vagnageymsla á jarðhæð. Djúpgámar á lóð.
Næg bílastæði eru við húsið. 

VÖNDUÐ EIGN ÞAÐ SEM RÍK ÁHERSLA HEFUR VERIÐ LÖGÐ Á FALLEGA HÖNNUN, EFNISVAL OG FRÁGANG. STUTT Í ALLA ÞJÓNUSTU, S.S. GRUNNSKÓLA, FRAMHALDSSKÓLA, SUNDLAUG, LÍKAMSRÆKT OG VERSLANIR AF ÝMSU TAGI. SPENNANDI UPPBYGGING AÐ FARA AF STAÐ Í HVERFINU.

Eddufell 2-6 er vandað lyftuhús á 6 hæðum. Eignirnar sem eru 22 eru af ýmsum stærðum, allt frá stúdóíbúðum/vinnustofum til 4ra herbergja Penthouse íbúða með tvennum svölum.

Nánari upplýsingar veitir: Lilja Hrafnberg Viðskiptafræðingur/Löggiltur fasteignasali, í síma 8206511, tölvupóstur lilja@gimli.is eða gimli@gimli.is

Gimli fasteignasala hefur stundað fasteignaviðskipti með farsælum hætti á fimmta áratug og er ein af elstu starfandi fasteignasölum landsins, stofnuð árið 1982. Leiðarljós Gimli er heiðarleiki, traust og góð þjónusta. Gimli, gerir betur...
Gimli er staðsett á 2. hæð á Grensásvegi 13, 108 Reykjavík og á 2. hæð á Eyravegi 29, Selfoss.
Opnunartími frá kl. 10 -16 alla vikra daga, sími: 570 4800, tölvupóstur: gimli@gimli.is
Heimasíða Gimli fasteignasölu
Gimli á Facebook

Um skoðunar- og aðgæsluskyldu kaupenda: Í lögum um fasteignakaup nr. 40/2002 er kveðið á um ríka skoðunarskyldu kaupenda á fasteignum. Gimli fasteignasala bendir væntanlegum kaupendum á að kynna sér vel ástand eigna við skoðun og fyrir tilboðsgerð og að leita til sérfræðinga um nánari ástandsskoðun ef þörf er á.

Forsendur söluyfirlits: Söluyfirlit er samið af fasteignasala í samræmi við ákvæði laga nr. 70/2015. Þær upplýsingar sem fram koma í söluyfirliti þessu eru sóttar í opinberar skrár, til seljanda sjálfs og eftir atvikum til húsfélags. Seljandi veitir upplýsingar um eign í samræmi við upplýsingaskyldu laga um fasteignakaup nr. 40/2002. Fasteignasali sannreynir að þær upplýsingar séu réttar með sjónskoðun á eigninni. Fasteignasali getur ekki fullyrt um ástand og eiginleika þeirra hluta fasteigna sem ekki eru aðgengilegir og sjást ekki berum augum, t.d. lagnir, dren, skólp og þak.
Gjöld sem kaupandi þarf að standa straum af vegna kaupanna: Stimpilgjald af kaupsamningi sem er hlutfall af fasteignamati. Stimpilgjald er 0,8% fyrir einstaklinga (0,4% við fyrstu kaup m.v. að lágmarki 50% eignarhlut) og 1,6% fyrir lögaðila.Þinglýsingargjald hvers skjals er kr. 2.700,- Lántökugjald lánastofnunar skv. gjaldskrá viðkomandi lánveitanda. Umsýsluþóknun fasteignasölu skv. gjaldskrá. Þar sem um nýbyggingu er að ræða greiðir kaupandi skipulagsgjald, 0,3% af brunabótamati, þegar það er lagt á.
 

Sambærilegar eignir

Opna eign
Image
Opna eign
Grettisgata 44
101 Reykjavík
43.3 m2
Fjölbýlishús
211
1,028 þ.kr./m2
44.500.000 kr.
Gimli fasteignasala logo
Gimli fasteignasala
Kt. 5312230710
Opið mán - fös frá 10:00 til 15:00
Hafðu samband
Hlekkir
Samfélagsmiðlar
© Copyright 2026 - Gimli fasteignasala
Knúið af
Fasteignaleitin